How To Layout A Small Commercial Kitchen
If the work triangle concept doesnt apply to your current kitchen because you have more than one cooktop for instance keep in mind the different steps of the kitchen flow when organizing it.
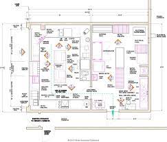
How to layout a small commercial kitchen. Example kitchen layout in Appendix A the dirtiest equipment is located in one corner of the kitchen three-compartment sink garbage mop sink and hand washing sink. If the kitchen has air conditioning you should put air injection in front of the extraction hood. Ad Download Kitchen Stove Industry Reports on 180 countries with Report Linker.
Kitchen refurbishment for Kent CC primary schools. Giving careful thought to how you design a small commercial kitchen is crucial if you want to maximise time efficiency and money. Sharp Small Commercial Kitchen Design StoryBlog.
Heres our guide for how to set up a small commercial kitchen in 3 easy steps. Blueprints of Restaurant Kitchen. Blueprints of Restaurant Kitchen Designs.
There are many requirements in a restaurant kitchen so before you dive into the factors to consider when planning a commercial kitchen design youll need to do a little research. Blueprints of Restaurant Kitchen Designs. The island-style layout places the ovens ranges fryers grills and other principle cooking equipment together in one module at the center of the kitchen while other sections of the kitchen are placed on the perimeter walls in the proper order to preserve a circular flow any section can be the island depending on what best suits your needs.
Examples Of Layouts Of Commercial Kitchen. Construction in small. A proper design and a well thought out commercial kitchen layout can drastically improve the productivity of employees which ultimately means better service.
Make sure that the food preparation. Commercial kitchen layouts are built around a focus on workflows and safety. Home Layouts And Floor Plans Small Commercial Kitchen Washing Area Layout Plan 218201.
